ERWEITERUNG KINDERGARTEN WALDHAUSEN IM STRUDENGAU - 1. Preis   geladener Wettbewerb 2017   in Planung

UNTERGEORDNET

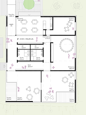
Der Zubau zum Kindergarten ist als 1 - geschoßiger Baukörper konzipiert und ordnet sich durch seine niedrige Bauhöhe dem bestehenden Hauptgebäude unter – Der Zubau entspricht so der Logik des Ensembles.

Über einen Verbindungsgang von der westlichen Fensterposition des bestehenden Personalraums ist die Kindergartenerweiterung mit dem Hauptgebäude verbunden.

Der so entstehende Raum zwischen Kindergarten und Zubau wird für Terrassenflächen genutzt und als Patio inszeniert mit direktem Zugang vom Mehrzweckraum . Die Terrassen der bestehenden Gruppen werden erweitert .

GRUPPENRÄUME

Die Gruppenräume im Zubau sind im Süden angeordnet. Jede Gruppe wird von zwei Seiten natürlich belichtet. Wie im Bestand sind auch im Zubau überdeckte Terrassen den Gruppen direkt zugeordnet. Es entsteht eine Sequenz vom Innen- bis zum Außenraum.