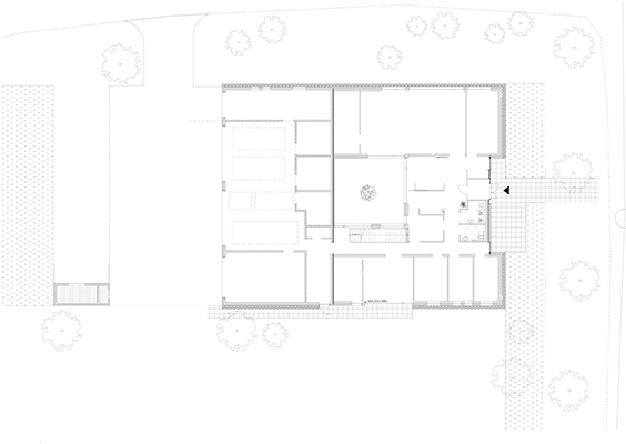
OÖ ROTES KREUZ - DIENSTSTELLE SCHWERTBERG   Planung 2015 - 2016   Realisierung 2017


Das ebene Grundstück liegt am Rande des Ortszentrums von Schwertberg westlich der Aist und wird über eine Rettungsausfahrt und einen eigenen Besucherzugang erschlossen. Über den kompakten eineinhalbgeschossigen Entwurf wird eine homogene Aussenhülle gestülpt, aus der ein zentrales Atrium herausgeschnitten ist. Der Grundriss berücksichtigt eine Gliederung in öffentlichen, halböffentlichen und privaten Bereich, und bildet so die Abläufe räumlich ab.